HOME > 機械設計支援
当社は、高度な専門知識と豊富な実務経験を活かし、設計技術支援サービスを提供しております。
お客様のご要望を丁寧にヒアリングし、アイデアを最適な設計ソリューションへと具現化することで、自動化・省人化・業務効率の向上を実現します。


図面作成にとどまらず、構想段階から製品が安定して稼働するまで、お客様に寄り添いながら一貫してサポートいたします。
設計内容の大小を問わず、あらゆるご要望に真摯に向き合い、きめ細やかな対応を心がけております。
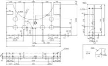
- 機械装置、部品、治具などの設計支援
- お客様の仕様に基づくCADモデリング
- 設計変更・改良の提案にも対応

- 組立図からの部品図展開(ばらし図作成)
- 寸法、公差、材質の明記
- 加工・組立現場で使える図面を作成

- 紙図面・PDF図面をデジタル化(2D/3D)
- 旧図面の再作成・修正にも対応

- 紙図面・PDF図面を3Dモデリング作成
- 3D CADによる部品モデリング、アセンブリ作成、干渉チェックなどの設計業務に対応

当社は、機械設計および生産技術分野において豊富な経験を持つエンジニアチームにより、高品質な設計支援サービスを提供しております。
2D/3D設計からモデリング、図面作成、プロセス検討まで一貫対応が可能で、お客様の設計負荷軽減と開発スピード向上を実現します。
また、日本語での円滑なコミュニケーション、柔軟な対応力、そしてコスト競争力を強みとし、日本企業様の信頼できるパートナーとして長期的にサポートいたします。
品質・納期・価格のすべてにおいてご満足いただけるサービスをご提供することをお約束します。
当社の機械設計支援サービスは、自動化設備、搬送装置、省人化装置、専用機設計、治具設計など幅広い分野に対応しております。
製造業を中心に、日本企業様向けの設計アウトソーシングを数多く手がけており、日本品質基準に基づいた図面作成と3Dモデリングを実施しております。
部品単体の設計から大型装置のアセンブリ設計まで柔軟に対応可能であり、コスト削減と設計リードタイム短縮を同時に実現いたします。
① お問い合わせ・仕様確認
図面データ、仕様書、参考資料をもとに詳細ヒアリングを行います。
② お見積り・作業範囲確定
作業内容・納期・費用をご提示し、合意後にプロジェクト開始となります。
③ 設計・モデリング作業
2D/3D CADを使用し、日本基準の品質で設計業務を実施いたします。
④ 中間確認・修正対応
進捗報告を行い、お客様のご要望に応じて柔軟に修正対応いたします。
⑤ 最終納品
最終図面データ(PDF・DWG・STEP等)を納品し、必要に応じてアフターサポートも対応いたします。
ISHIKAWA SOLUTION VIET NAMは、日本語対応可能なエンジニア体制を整え、日本企業様とのスムーズなコミュニケーションを実現しております。
ベトナム拠点によるコストメリットと、日本品質の設計基準を両立させることで、設計外注パートナーとして長期的な信頼関係を構築しております。
機械設計・製図・図面バラシ・3Dモデリングの外注をご検討の際は、ぜひ当社までお気軽にご相談ください。